about admobe architect
news
Work
blog
Contact
about admobe architect
news
Work
blog
Contact
admobe architect

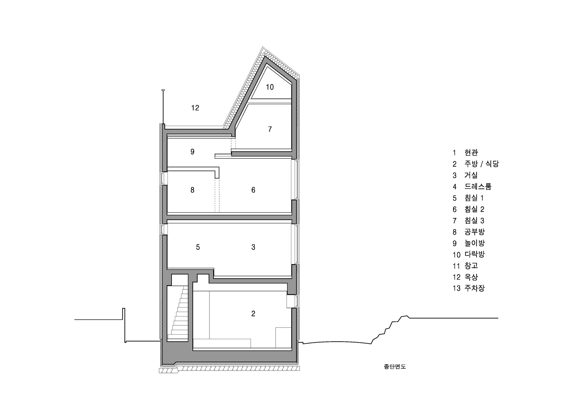
형제가 사는 집

위 치 : 서울특별시 마포구 대흥동 
대지면적 : 69.00 m2 
연 면 적 : 118.48 m2 
규 모 : 지상4층 
구 조 : 철근콘크리트구조
시공사 : 뉴마이하우스 
완공일 : 2017년 11월






전원속의내집 2018년 2월호
this is

You may also like

혜화성당 백동관 _리모델링
2019
가회동 주민센타 _증축 및 리모델링
2019
올림픽프라자 _리모델링
2019
동국대학교 도서관 _증축
2019
충신연극공유센타 _증축 및 리모델링
2019
호와원
2019
Bay club
2025
VOYAGE 보아야즈
2022
삼각지붕 집
2019
동춘온실 東春溫室
2021
↑Back to Top
Copyright 2004. admobe architect All rights reserved. 주.에이디모베건축사사무소 / 건축사 이재혁