위 치 : 서울특별시 종로구 가회동
대지면적 : 435.00 m2
연 면 적 : 1,032.08 m2
규 모 : 지하2층~지상3층
구 조 : 조적조 + 철골구조
완공일 : 2017년 11월
대지면적 : 435.00 m2
연 면 적 : 1,032.08 m2
규 모 : 지하2층~지상3층
구 조 : 조적조 + 철골구조
완공일 : 2017년 11월
photo by 윤동규
2017년 ‘찾동 사업’으로 시작된 가회동 청사의 설계는 몇 차례 협의를 거치며 전면 리모델링으로 변경되었다. 기존 청사는 공간건축에서 설계하고 1995년 완공되어 20년 넘게 사용된 건물이다. 신축 당시 길의 연장으로서의 필로티, 2층 민원실 설치, 2~3층의 오픈 공간 등, 많은 건축적 아이디어를 가진 건축이었으나, 노후화된 설비, 비효율적인 공간 배치, 장애인 엘리베이터의 부재 등으로 대대적인 개선이 필요하게 되었다.
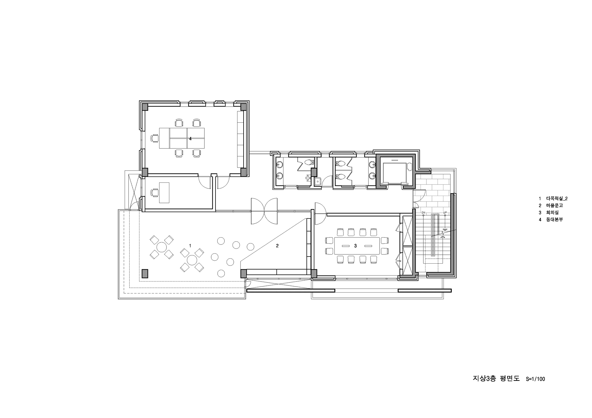
어떻게 기존 건물의 역사를 간직한 채 새로운 건물로 탄생시킬 것인가와 주민이용을 극대화하고 이곳이 그들의 공간임을 드러낼 것인가가 중요한 건축적 목표가 되었다.
건물 전면에 가벽을 설치해 대칭이던 건물 입면에 변화를 주었다. 질감이 풍부하고 현대적 이미지를 살릴 수 있는 테라코타 패널의 가벽을 기존 벽과 분리시켜 설치하여 그 사이 공간을 통한 긴장감을 드러내 시간의 켜가 만나는 건물의 역사를 보여주기로 하였다. 반면 건물의 후면은 최대한 기존 마감을 유지해 가벽의 존재를 부각시켰다. 주출입구의 위치를 변경해 건물의 접근성을 높이고 관광객과 민원인의 동선을 분리시켰다. 매 층마다 주민들이 이용할 수 있는 프로그램 공간을 만들고 3개의 주민이용 공간은 투명한 유리의 볼륨으로 돌출시킴으로서 가회동의 길을 건물내부로 확장시켰다.


















































































