about admobe architect
news
Work
blog
Contact
about admobe architect
news
Work
blog
Contact
admobe architect
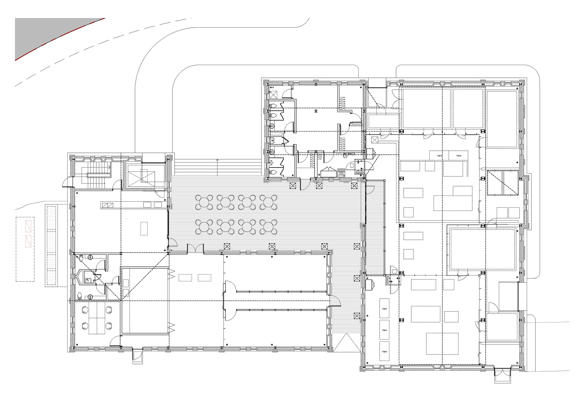
상하농원 햄공방+상하키친
대지위치 : 전라북도 고창군 상하면 용정리
용 도 : 제2종근린생활시설(제조업소,일반음식점) + 문화집회시설(체험장)
대지면적 : 7,239.0㎡
층 수 : 지하1층 ~ 지상1층
구 조 : 철근콘크리트, 철골구조
연 면 적 : 947.16㎡
완공일 : 2015년 11월
설계협력 : 김범, 최춘웅
You may also like
동국대학교 도서관 _증축
2019
3대가 사는 집 _증축
2023
Z haus
2022
상하농원 젤라또카페
2023
올림픽프라자 _리모델링
2019
동춘온실 東春溫室
2021
관양동 ㄹ빌딩
2019
우다당 友多堂
2022
혜화성당 백동관 _리모델링
2019
우장산공원 힐링숲 체험센타
2019
↑
Back to Top